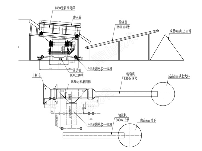
針對隧道石頭進行給料分離脫水作業,我們給出的工藝流程如下圖:

具體工藝描述:
1、原料,喂料到1860無軸滾筒篩;
2、通過無軸滾筒篩將2公分以上的碎石分離出來;
3、在無軸滾筒篩的下部配置脫水回收機,將無軸滾筒篩的篩下物進行脫水作業,分離出固液;
4、將脫水回收機分離出的液體進行沉淀;
5、通過渣漿泵,將沉淀的固液混合物泵送到旋流器,經旋流器后固液分離,固體在脫水篩上端,液體流入脫水回收機底部的沉淀池中,并形成閉路循環;
6、通過皮帶輸送機將無軸滾筒篩、脫水回收機的篩上物分別輸送到成品區;
無軸滾筒篩介紹:
無軸滾筒篩是針對傳統滾軸篩而命名的新型篩分設備,無軸滾筒篩是土石分離、砂石分離、垃圾分揀篩分系統中重要的組成設備,它是根據需要篩分物料的不同粒度大小進行篩選的分篩設備,可設計成圓形篩筒和內六角篩筒,內部可增加初級破袋裝置并具有自我清潔的功能。

技術參數:
型號:1860型;
工作面尺寸(mm):1800×6000;
螺鋼直徑(mm):30;
處理能力:50-300T/H;
篩孔:30mm;
篩網:10mm;
輪胎數:8個;
電機功率:22-30KW;
外形尺寸:11000mm×2200mm×3000mm(參考);
細砂回收脫水一體機:
細砂回收一體機也叫細砂回收脫水一體機,主要用途是將洗石機、洗砂機、垃圾漂洗設備清洗過的物料進行脫水作業,并對排放廢水中的細砂進行回收和脫水。該機器主要應用于洗砂、洗石、垃圾處理生產線當中,經脫水的機制砂外觀更好,級配更合理,更符合基建用砂要求,脫水后的垃圾含水量更低,運輸更方便,與前段設備進行對接,具有結構合理,占地面積小,投資成本比兩臺設備(細砂回收機+脫水篩)價格低等優點。

技術參數:
型號:2445型;
工作面尺寸(mm):2400×4500;
最大入料(mm):30;
處理能力:50-300T/H;
電機功率:67KW(電機:15kw×2臺,渣漿泵37KW);
旋流器:350型兩個;
設備價格參考(含稅):1860無軸滾筒篩9.8萬,2445脫水回收一體機16萬,價格以市場最新價格為準。了解詳情請留下您的聯系方式我們24小時內與您聯系: TEL:13721431212 0371-56630331